Oficinas Zett

Quillota, Región de Valparaíso.

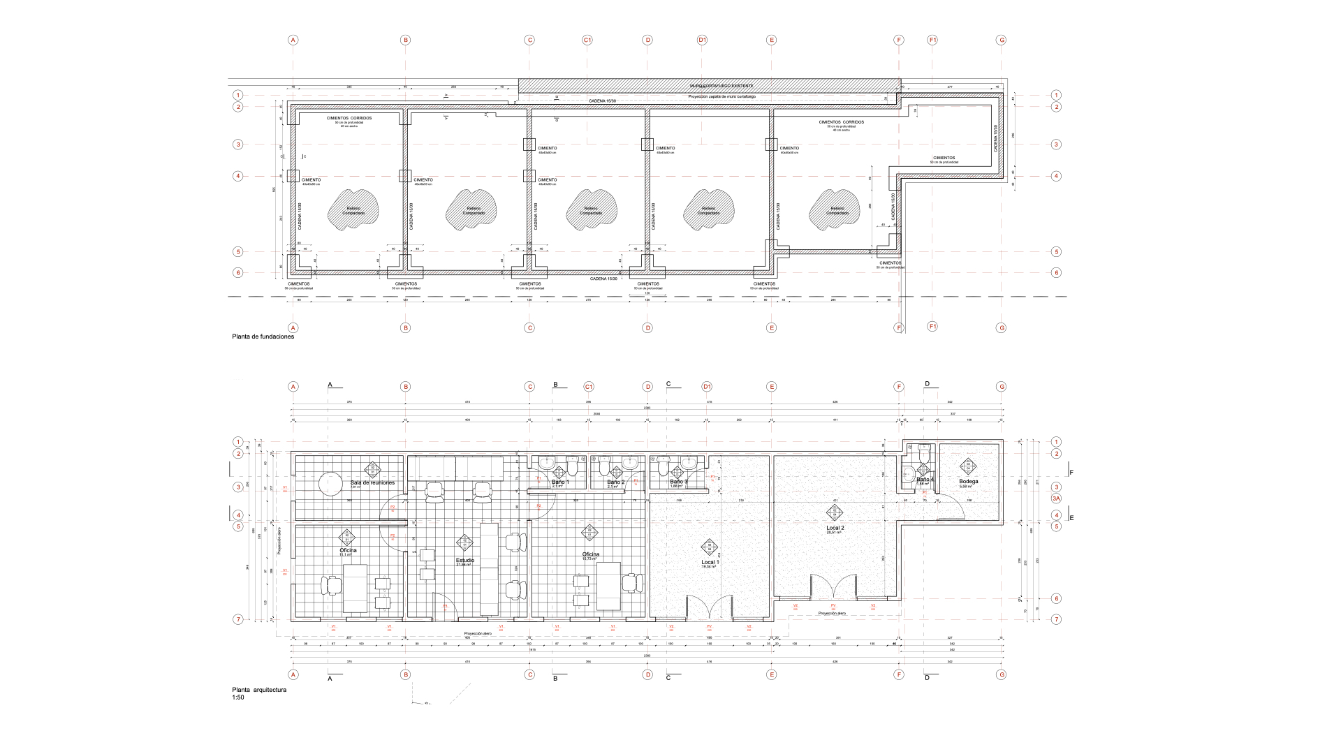
Este proyecto contempla el diseño y la ejecución de una construcción en Calle Chacabuco, Quillota, la cual desde sus inicios ha sido gestionada por 890 ARQ SpA y 890ARQ LTDA. Dichas labores comenzaron desde el diseño arquitectónico del inmueble hasta su posterior construcción, donde se ha administrado la mano de obra calificada para aquello, además de gestionar logística y presupuestos de obra, junto con realizar labores de inspección técnica y procesos que permitieron el correcto desarrollo del levantamiento de principio a fin.

La construcción además contempla el diseño y construcción del paisajismo exterior, labores también a cargo de 890 ARQ SpA. y que han permitido finalizar con éxito un proyecto constructivo desde todas sus aristas y resolviendo diversas variables como la compra de materiales, resolución de problemáticas constructivas, elección de materiales y todo detalle que surge durante un proyecto de gran envergadura.

Superficie: – m². Partida estructural:
Copyrigth © 2024 890 ARQ | Diseñado por Gabriela Zett